Flexibele plattegronden
Bekijk de mogelijkheden

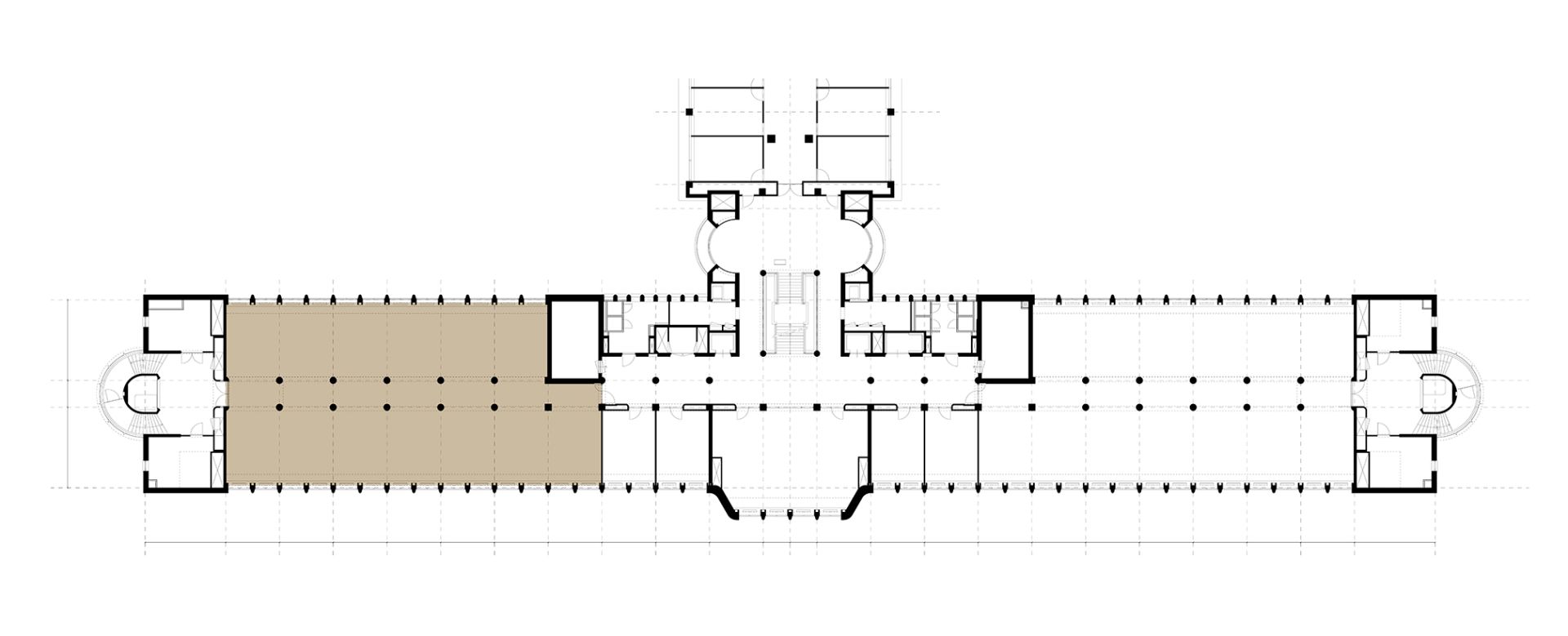
570 m2
South West Wing

570 m2
South West Wing

230 m2
Mid

230 m2
Mid

570 m2
North East Wing

570 m2
North East Wing

1e en 2e Verdieping ca. 1.370 m2
Full Floor
1e en 2e Verdieping ca. 1.370 m2
Full Floor
Disclaimer
Disclaimer
metrage zal nog worden vastgesteld conform NEN 2580
Krijg een hier een preview van de indelingsvarianten
of download een pdf met indelingsvarianten.




Volg ons